台北市綜合新聞 Taipei
114年分階段軍事訓練申請自10月16日起開放網路報名...
(2025/10/15)
「臺北街藝之星」將接連於臺北時裝週與白晝之夜亮相...
(2025/10/15)
天母萬聖節盛事再升級!《牠》聯名驚悚登場、百鬼踩街搗...
(2025/10/15)
北市特教育樂活動盛大登場 師生齊聚闖關暢遊3大場館...
(2025/10/14)
水肥廢棄物合法委託清除 確保自身權益...
(2025/10/14)
「大巨蛋好宿PASS」加碼抽限量GD演唱會周邊...
(2025/10/14)
跨世代共學探月趣!天文親子營10月14日起搶先報名...
(2025/10/13)
「搭捷運 聽民歌」公益演唱會 10/18大安森林公園登場...
(2025/10/13)
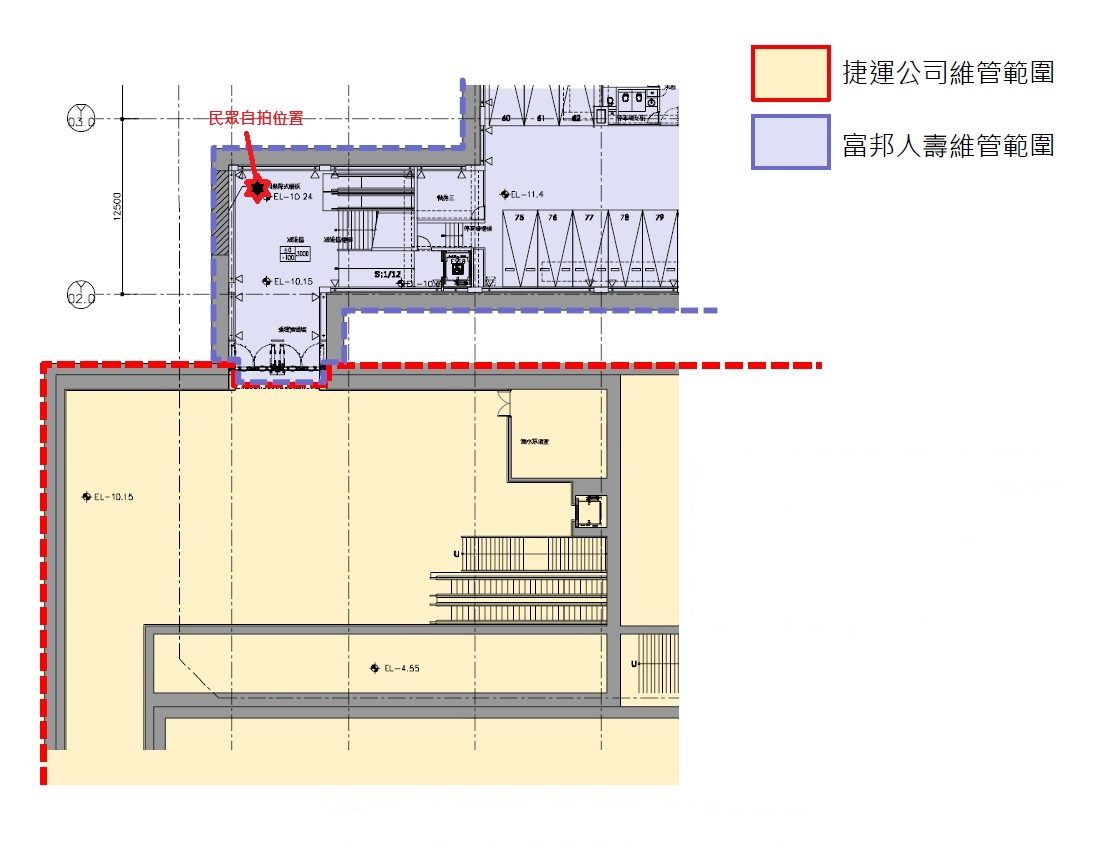
臺北捷運鄭重聲明 捷運站內嚴禁拍攝不雅影照片 如發現一...
(2025/10/13)
臺北電臺金鐘60表現亮眼 共榮獲2項大獎...
(2025/10/12)
「2025 Color Taipei」狂歡直達車 Party Tour開行 共遊臺北LGBTQ+...
(2025/10/12)
減碳生力軍來囉 北市土壤改良劑10/13開放申請...
(2025/10/12)
上一頁
1
2
3
4
5
6
7
8
9
10
下一頁